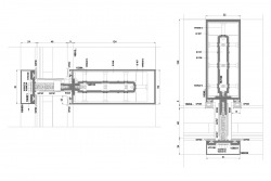
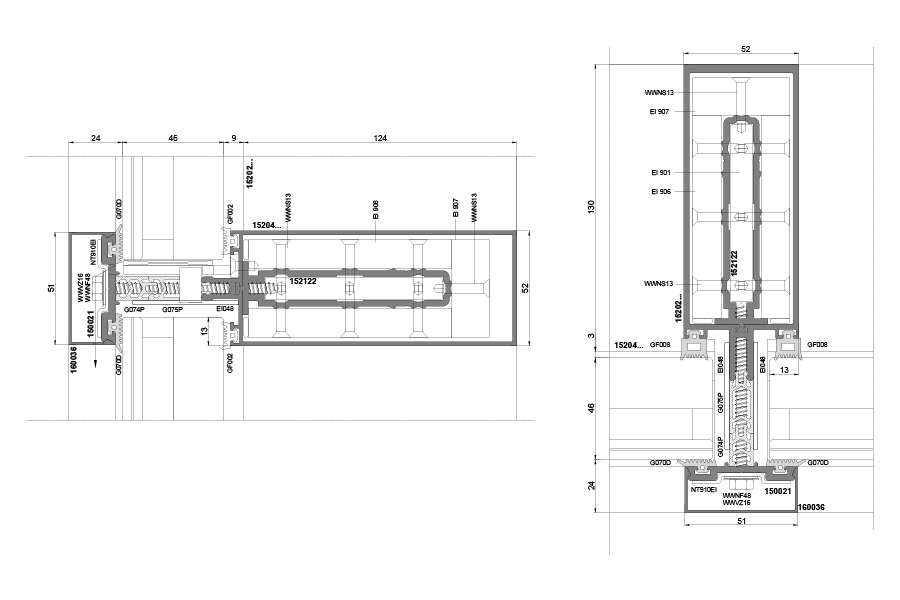
System description
Curtain wall of transom post system PF152 in fire resistance class. PF152EI received classification for fire resistance of curtain walls in the full configuration
System properties
The system is selected to the classes EI 60 and EI 30, after the tests, during which has been heated from internal and external side.
The fire curtain wallbars between the glass storey and opaque storey can be made in this system. The transparent glass (single or combined) produced by most of manufacturers in the market can be assembled as a fulfillment in fireproof classes EI 30 or EI 60. Reinforced internal aluminium profiles with fireproof inputs and special transom post connectors provide the construction with design load in fire conditions. Swelling tape protects thermal barrier of profile and insulates the connection between the structure and the glass or other opaque fills, creating an element of fire resistance and fire insulation. There is a possibility to make a facade construction with fireproof doors (single of double leaf).
- It is possible to embed single-glass or multi-glass transparent and opaque panels with a thickness of 15-66mm.
- Surface coatings - polyester powder coating according to Qualicoat. Available in all RAL colors; anodized and with a wood-like appearance; Polyester powder coating for the highest anti-corrosion requirements.
CONTACT US AND GET AN OFFER
To Order