Office building – Toma iela 4, Rīga
Rīga2021
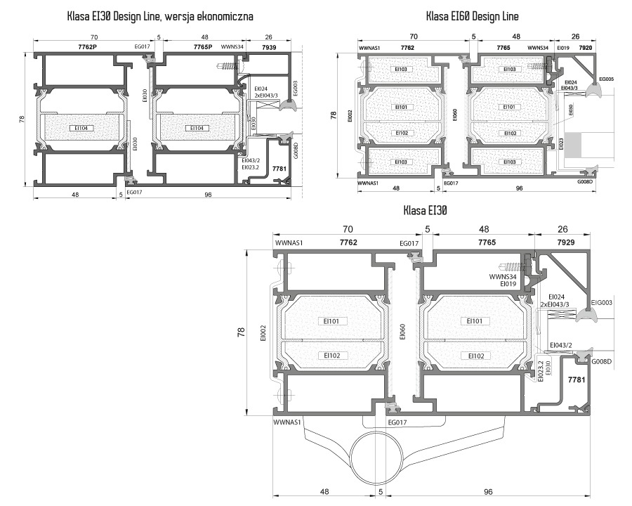
The three-chamber system is designed to set up internal or external firewalls. PE78EI allows to assembly single and double-wing, outward opening or inward opening doors with different threshold solutions.
The system uses thermal pads which ensure resistance to fire : EI 30, EI 60, EI 90, EI 120. The structural depth of the frame and sashes is 78 mm (for frame EI 120 - 89 mm).
In the system there is used thermal break - 35 mm wide, which ensures high thermal insulation.
There is an easy assembly of accessories in the PE78EI system, which greatly accelerates the formation of the structure. With the three chamber design and additional reinforcing elements, the system allows to assembly construction of large size.