Systembeschreibung
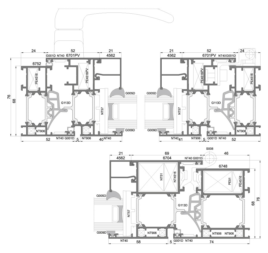
Die Dreikammerprofilsysteme, mit der Euro-Nut und Beschlagnut, die in Fenster und Balkontüren aus PVC- oder Holzprofilen zum Einsatz kommt. Die Profilbautiefe der Rahmen beträgt 68 mm und der Flügel 76 mm.
Systemeigenschaften
Das Dreikammersystem Ponzio PE68 ermöglicht die Herstellung großer Konstruktionen.
Bei einem PE68 Drehfenster können folgende Werte erreicht werden: Uw=0,93 W/m2 K (Die Daten wurden in einer Konstruktion mit Größe L=1480 x H=2180 mm erreicht, mit dreifachem Glaspaket Ug=0,5 W/m2 K)
- Möglichkeit, mit anderen Ponzio-Systemen zu verbinden.
- die Möglichkeit, Zweikomponenten-EPDM-Dichtungen der höchsten Technologie mit perfekter Wärmedämmung zu verwenden. Ästhetisches Gesamtbild und einfache Montage.
- Gebogene Profile (bogenförmige usw.)
- Möglichkeit, normale oder verdeckt liegende Bänder zu installieren.
- Möglichkeit zur Einbindung von Smart-Home-Lösungen.
- Dreh- und Schiebefensterflügel.
- verschiedene Eckverbindungen.
- Beschläge: es werden die bekanntesten Marken verwendet: Roto, Sobinco, Savio, Siegenia, Winkhaus, usw.
- Füllungen – Ein- oder Doppelglaspaketenfüllung, sowie undurchsichtige Paneele in der Dicke von 18-59 mm.
- Oberflächenbeschichtungen - Polyester-Pulverbeschichtung nach Qualicoat. In allen RAL-Farben erhältlich; eloxiert und in holzähnlicher Optik; die Polyester-Pulverbeschichtung erfüllt die höchsten Korrosionsschutzanforderungen.
Bestellen