Systembeschreibung
Das Dreikammersystem mit zusätzlicher Wärmedämmung für Türen.
Systemeigenschaften
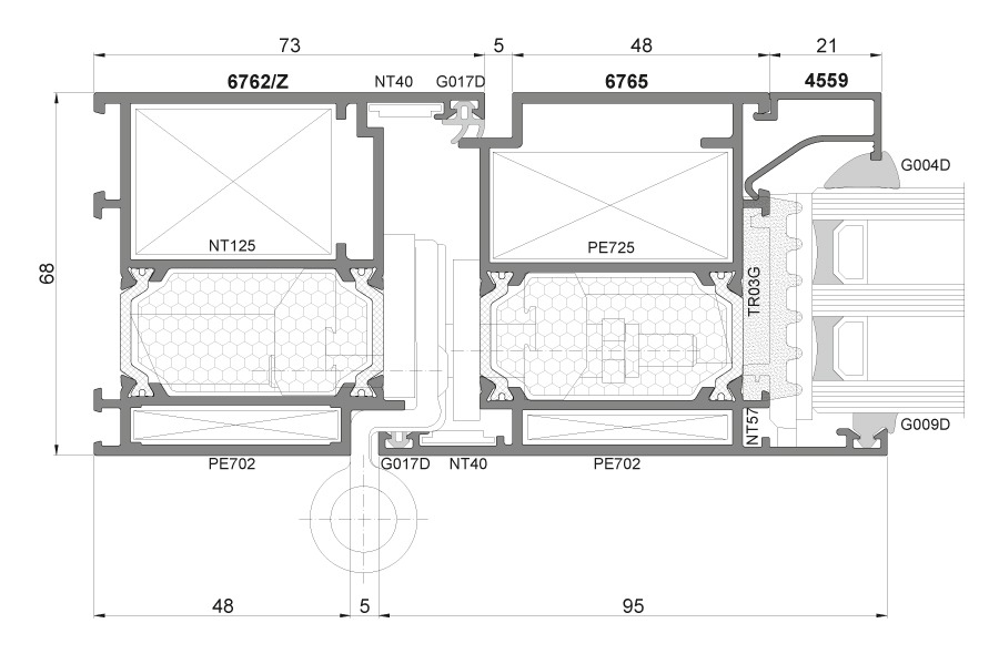
Das PE68 System enthält speziell profilierte Wärmebrücken mit einer Breite von 24 mm. Darüber hinaus sorgen speziell entwickelte, aufeinander abgestimmte Profile für Verbindungen zwischen Türen, Fenstern und Vitrinen.
Bei PE68 HI Außentüren können folgende Werte erreicht werden: Uw=1,06 W/m2 K (Die Daten wurden in einer Konstruktion mit Größe L=1230 x H=2180 mm erreicht, mit dreifachem Glaspaket Ug=0,5 W/m2 K)
- Drei Arten von Wärmedurchlässigkeitslösungen - Standard / "+"-Lösung / HI-Lösung.
- Einbautiefe der Konstruktionen ist 68 mm.
- Es können Doppel- und Dreifachglaspakete, sowie undurchsichtige Paneele in der Dicke bis zu 51 mm eingesetzt werden.
- Verschiedene Optionen für die Ausführung von Türflügeln: Verbindung der Flügelecken im Winkel von 45 Grad, der untere Teil des Flügels in 90 Grad verbunden, mit unterschiedlich breiten Profilen, mit oder ohne Schwelle,
- Es können gebogene/gewölbte Konstruktionen hergestellt werden.
- Die Möglichkeit, Aufsatz-, Rollenbänder oder verdeckt liegende Bänder zu installieren.
- Möglichkeit, verschiedene Arten von Schlössern zu integrieren (Einpunkt- oder Mehrpunktbefestigung, Zugangskontrolle, Fluchttürausrüstung, Smart-Home-Lösungen usw.).
- Beschläge: es werden die bekanntesten Marken verwendet: Fapim, Savio, Isea, Cisa, Geze Dorma, usw.
- Oberflächenbeschichtungen - Polyester-Pulverbeschichtung nach Qualicoat. In allen RAL-Farben erhältlich; eloxiert und in holzähnlicher Optik; die Polyester-Pulverbeschichtung erfüllt die höchsten Korrosionsschutzanforderungen.
Bestellen