System description
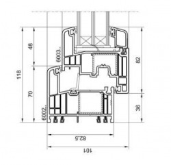
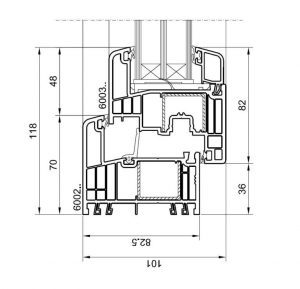
GEALAN's new S 9000 combined system combines the advantages of center and groove sealing with a construction depth of 82.5 mm.
System properties
The large construction depth, six profile chambers in the window frame, sash and three integrated insulation levels provide excellent thermal insulation. such windows meet the relevant requirements. The middle seal in the lower part of the window frame improves the overall thermal insulation. In addition, it protects the mounting element from moisture, improving the process of opening and closing the window, especially at low outdoor temperatures. Very good heat and sound insulation frame, thanks to the 6-chamber design, as well as the large window and sash construction depth.
- Aesthetic and invisible external sealing of window and door glass.
- Three window seals ensure a high thermal insulation coefficient.
- Overall system frame depth - 83mm
- Packed window panels with any kind of glass or opaque panels of width: 24-48mm
CONTACT US AND GET AN OFFER
To Order