„MOHO GARDEN“ in Mežaparks, Mežezera iela 6 und 8. Zwei 9-stöckige Gebäude
Rīga2024
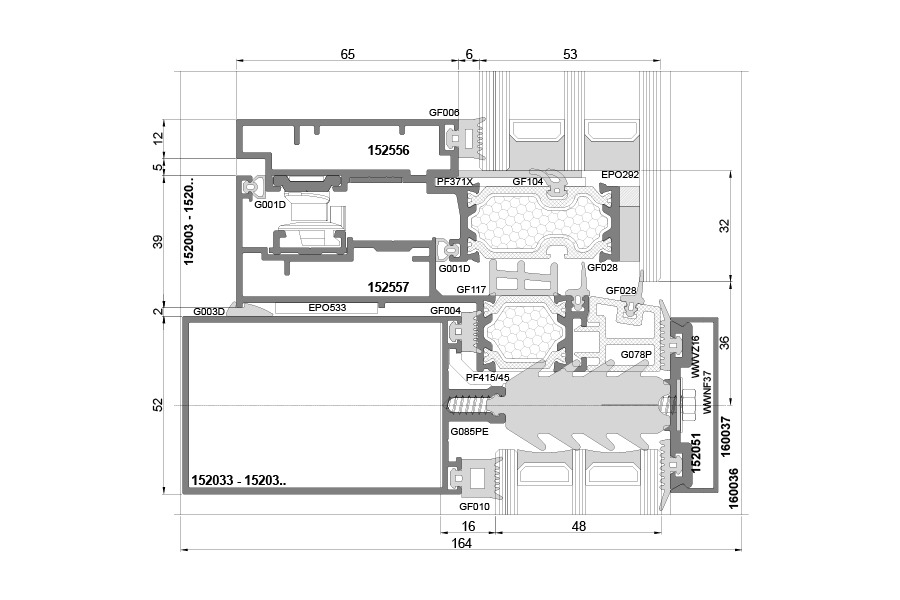
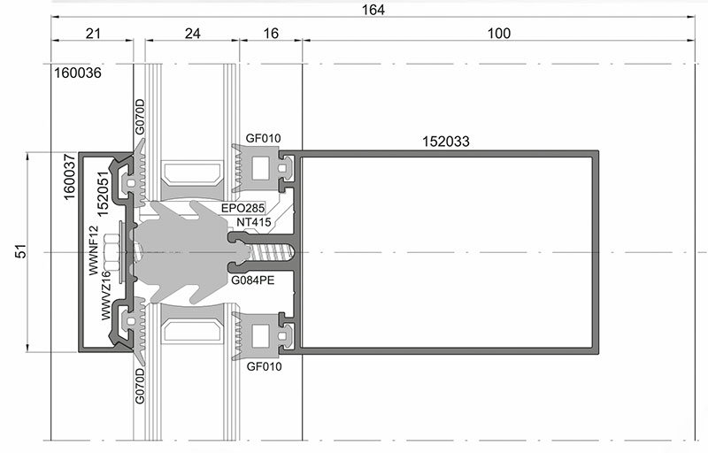
Vorhangsfassaden sind so konzipiert, dass sie den Bau großflächiger verglaster Konstruktionen ermöglichen, um maximalen Lichteinfall in das Gebäude zu ermöglichen und gleichzeitig die erforderliche Wärmedämmung zu gewährleisten.
Die Vorhangsfassadenprofile erfüllen eine tragende Funktion, die Verglasungen oder andere Füllungen aufnimmt, sowie Dichtungs-, Wärmedämmungs- und Kondensatableitungsfunktionen. Die Verglasung von Konstruktionen erfolgt von außen. Eine solche konstruktive Lösung eignet sich zur Bildung von Glasfassaden, Wintergärten, Hallen, Oberlichtkonstruktionen, Glasdächern, Vordächern usw.
Die statischen Parameter dieser Fassadensysteme erlauben den Bau von mehrgeschossigen selbsttragenden Aluminium-Glas-Konstruktionen in unterschiedlichsten Formen. Einschließlich geneigter, gebogener Fassaden, Fassaden mit verschiedenen Arten von verglasten Innen- und Außenecken, sowie verglasten Dächern. Es ist möglich, verschiedene Arten von Fenstern, Türen und Schiebekonstruktionen in die Konstruktion einzubauen.