System description
Non-frame curtain wall with the structural glazing assigned for the realization of lightweight facades and other spacial constructions.
System properties
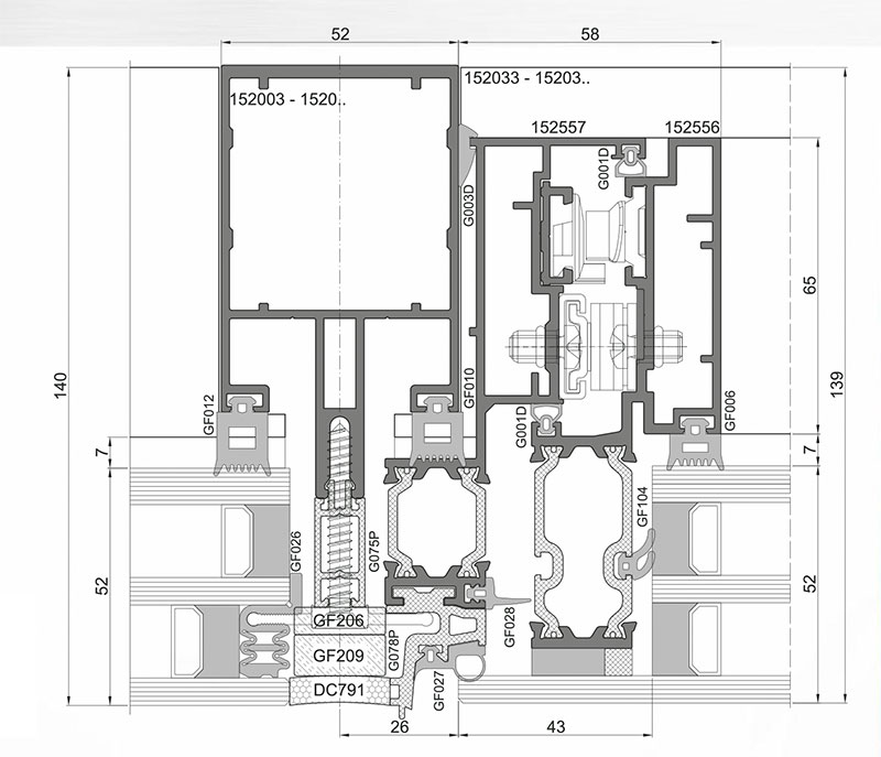
The post-transom construction of PF152 system is used as a load bearing element. The external side of PF152 ESG is uniform, smooth glass wall divided with vertical and horizontal lines at width 22 mm using weather silicon or at width 28 mm using the closing gasket. There is a possibility of assembling double and triple glazed units.
- Possible construction of tilt windows next to each other, opening autonomously
- Two ways of finishing wall surface: silicones or specially designed masking gasket
- Single, packet glass panels or opaque panels in the width of 26, 28mm, the possibility of assembling triple glazed units (in the width of 60 mm)
- Surface coatings - polyester powder coating according to Qualicoat. Available in all RAL colors; anodized and with a wood-like appearance; Polyester powder coating meets the highest anti-corrosion requirements
CONTACT US AND GET AN OFFER
To Order