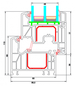
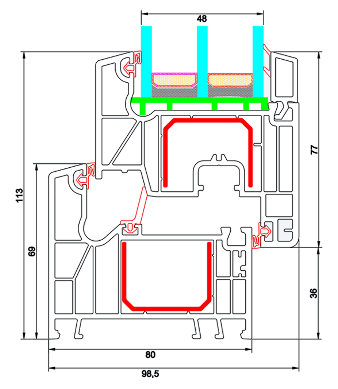
Sistēmas apraksts
Wital Active Therm PVC logi ir sešu kameru profila konstrukcija ar iebūves dziļumu 80mm un ar papildus blīvgumiju, lai nodrošinātu iespējami labāko siltumizolāciju.
Sistēmas īpašības
- Papildu blīvgumija stiklojuma kamerā, lai uzlabotu loga siltumvadītspēju.
- Stiklojuma iespēja biezumā līdz 48mm
- Lielas profila kameras nodrošina pareizu profilu ventilāciju un lietus ūdens novadīšanu.
- Šo sistēmu logi nodrošina lielu saules gaismas iekļūšanas daudzumu.
SAZINIES AR MUMS UN SAŅEM PIEDĀVĀJUMU
Aizpildīt Formu