Sistēmas apraksts
SL1600tt ir bīdāmo ārējo durvju/logu sistēma. Tā ir paredzēta liela izmēra ārējo, bīdāmo konstrukciju izveidei.
Sistēmas īpašības
Izmantojama pārsvarā privātmājām.
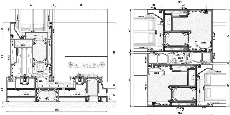
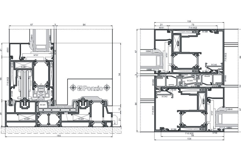
Konstrukcijas dziļums : 67 mm vērtnēm, 160 mm dubultsliežu rāmjiem un 247 mm trīssliežu rāmjiem. Ir iespējams izgatavot stabilas liela izmēra konstrukcijas, līdz pat 8 vērtnēm un ar ļoti lielu vērtnes svaru. Iespējams aprīkot ar automātisko motora pievadu. Stūra durvju savienojuma izveidošanas iespēja.
- Pieejamas dažādas siltumizolācijas versijas, lietojot dažādus izolācijas aizpildījumus (standarta, PLUS, HI).
- Liela noturība pret dažādiem laikapstākļiem
- Furnitūra: Ponzio un G-U
- Zemā sliekšņa izbūves iespējas.
- Stikls, stikla paketes un necaurspīdīgie paneļi biezumā līdz 51 mm.
- Virsmas pārklājumi - poliestera pulvera pārklājums saskaņā ar ar Qualicoat. Pieejams visās RAL krāsās; anodēts un ar kokam līdzīgu izskatu; Poliestera pulvera pārklājums atbilst augstākajām pretkorozijas prasībām.
SAZINIES AR MUMS UN SAŅEM PIEDĀVĀJUMU
Aizpildīt Formu